Задача автоматизации:
Модернизация системы управления установки «КЕГ-Сервис М2А» на ОАО «Гамбринус» (г. Ижевск).
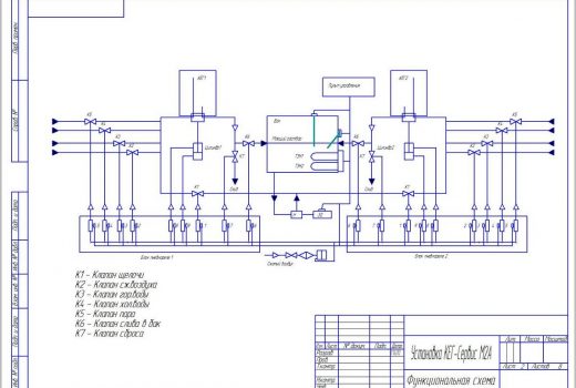
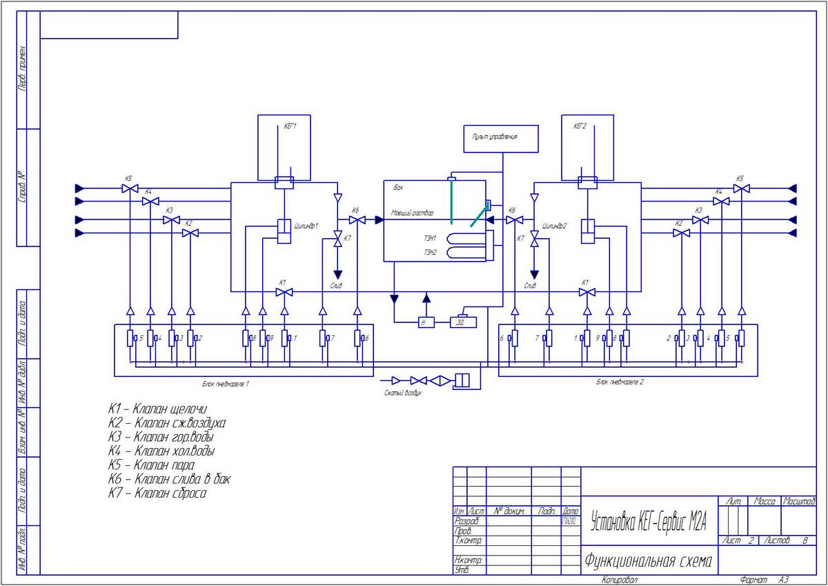
Описание установки:
Установка «КЕГ-Сервис М2А» представляет собой стационарное устройство с автоматическим управлением, предназначенное для автоматической мойки бочонков КЕГ. Установка состоит из следующих частей:
— рамы с устройством для установки и закрепления КЕГ,
— рабочего стола,
— бака со щелочным раствором,
— шкафа управления,
— насоса для циркуляции щелочного раствора,
— коллектора с отсечным клапанами 1-го и 2-го канала мойки,
— системы трубопроводов и клапанов для управления подачей и водоотводов моющих растворов.
— В баках хранения щелочного раствора установлены ТЭНы, датчики уровня и температуры.
Необходимость автоматизации:
Установка «КЕГ-Сервис М2А» изначально имела схему управления, выполненную на печатных платах, которые часто выходили из строя. Для диагностики и ремонта затрачивалось немало времени. В связи с этим было принято решение модернизировать данную установку с применением нового современного оборудования.
Реализация проекта и выбор средств автоматизации
Для реализации проекта было выбрано оборудование ОВЕН. В основу системы положены два основных устройства:
— программируемое реле ПР110-24.12Д.8Р-Ч – по 1 шт. на канал.
— ИП320 как доп.опция
— САУМ7 – 1 шт.
— ТРМ1-Р – 1 шт.
— Датчик температуры – 1 шт.
Программа, записанная в программируемое реле, позволяет произвести внутреннюю мойку бочонков КЕГ в автоматическом режиме.
Общий цикл состоит из следующих последовательных операций:
1. Промывка горячей водой
2. Продувка сжатым воздухом.
3. Промывка щелочным раствором
4. Продувка сжатым воздухом.
5. Промывка горячей водой
6. Продувка сжатым воздухом.
7. Ополаскивание холодной водой
8. продувка сжатым воздухом.
9. Стерилизация паром.
На этом процесс мойки закончен. Для следующих бочонков процесс мойки повторяется в той же последовательности. Качество процесса мойки проверяется. В случае неудовлетворительного качества мойки, корректируется длительность циклов мойки.
Результат автоматизации
В результате модернизации была достигнута устойчивая работа установки. Значительно облегчился поиск и устранение неисправностей.







